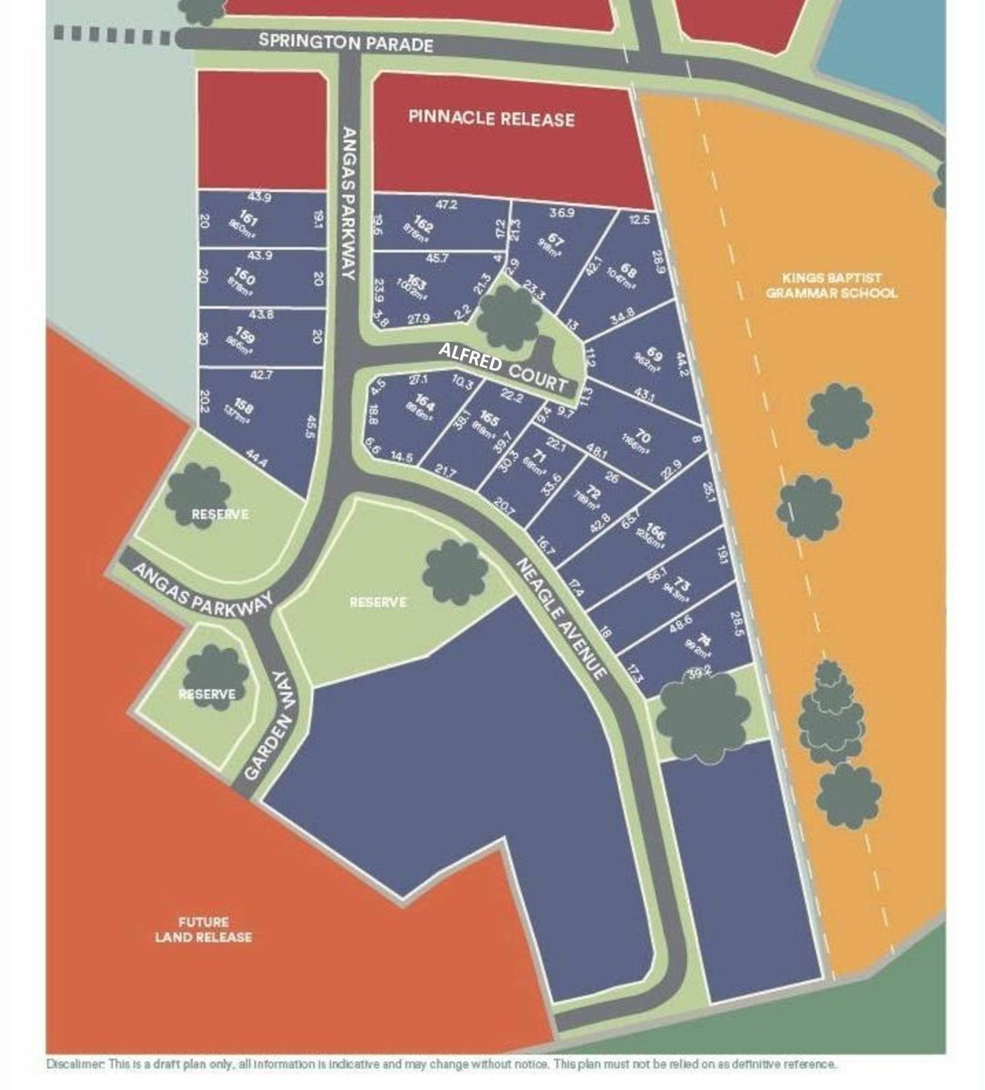
9, Alfred Court, Mount Barker

$395,000

1,166 m2

Grand plans start with grand views!

Set within Newenham Estate, Mount Barker, this generous parcel of land of 1,166sqms is ready for your dream build.

Space and room to move are the least of your concerns here - how will you use this impressive 1,166sqms of prime real estate? Being larger than most and commanding an elevated site upon a rise, capturing uninterrupted big sky views, this is a unique opportunity to see such a block available for sale.

To create a home with the ultimate point of difference, a house design would beckon to embrace its lofty features. Where perfectly placed windows will frame stunning distant views and where doors lead to a large deck - the ultimate viewing platform to watch the sunrise in the morning and, in the evening, sunset colours flood through the vistas. 

Set within the hugely popular Newenham Estate in the nearly sold-out Pinnacle Release, this is a beautiful residential development, designed to enrich the health, happiness and wellbeing of everyone who chooses to call it home.

Newenham is located in a beautiful pocket of the Adelaide Hills where the town centre of Mount Barker is easily accessible by foot via a creek-side path meandering through Keith Stephenson Park. There are many local schools – including the newly completed Kings Baptist Grammar School which is so close the kids can walk there each day. In addition, Mount Barker shopping precincts, dining choices, business opportunities and the Park'n'Ride bus interchange are all fabulous reasons why an address in Mount Barker is so convenient, all just 35mins to Adelaide CBD.

9 Alfred Court (Lot 70) is a Torrens titled allotment, offering a very generous land size, sensational views and located on a quiet no through road, being just a stone's throw from a Reserve. 

Google Maps hasn't yet caught up with the new roads. Please use these directions to view this land for sale: 

From Bollen Road, Mount Barker, turn onto Springton Parade.

Take the last street on the left (Angas Parkway).

Take the first street on the left (Alfred Court). You've arrived home .... 

Please contact Nina on 0419201600 or nina@hahndorfrealestate.com.au to arrange to meet on-site for further discussions. Inspection won't disappoint! 

RLA316900

1,166 m2

Details

Address 9, Alfred Court, Mount Barker
Price $395,000
Property Type Residential
Property ID 66
Category Vacant Land
Land Area 1,166 m2

Tools

Share This Property