Sold

75 Strathalbyn Rd, Aldgate

SOLD for $724,240

2 1 2 900 m2

Stunning 60's stone cottage with enormous potential!

! SOLD FIRST WEEKEND !

90 GROUPS THROUGH. 9 OFFERS.

Pls phone Nina if you are thinking of selling to connect with many 'ready to go' buyers! 

 

What's that you hear? That's the sound of your pounding heart, full of excitement at finding this totally gorgeous 1960's freestone cottage a mere 950m walk from Aldgate Village's centre. 

This property is testament that even unfurnished, it boasts warmth, character and all the loveliness we seek to find when we come home. 

She's a little tired in areas, but that's where the fun and imagination begins..... there are so many ways this 2 bedroom cottage can evolve.

With a few touches of repair in the kitchen and bathroom, she's ready to move in, an ideal starter for singles or young families.

Alternatively, build out in an elevated position towards that big open sky view which is begging to be witnessed from a brand new kitchen, living and master bedroom extension, where in such instance an additional downstairs room is easily achievable.

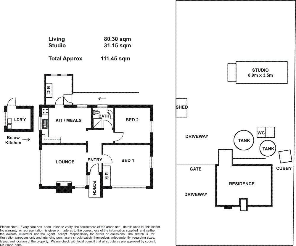
There's a cute little garden shed to store tools and secateurs for trimming the established garden consisting of fruits from lemon, lemonade, orange, fig, passionfruit, even hops, mixed with mature hedges and easy care lawns where there's room for cricket with the kids and the chooks to free range over a generous and private 900sqm's. 

A huge studio offers a multitude of uses, previously as a music studio that it is fully lined and sound insulated. Could this be where the family bunkers down during the home's renovations? A great way to save costs and live onsite. 

This very special cottage in such a central location is one which will appeal to many, now and for years to come.

2 1 2 900 m2

Details

Address 75 Strathalbyn Rd, Aldgate
Price SOLD for $724,240
Property Type Residential
Property ID 5
Category House
Land Area 900 m2

Tools

Share This Property