Sold

24 - 26 Cave Ave, Bridgewater

SOLD for $770,000

3 1 4 3,196 m2

Funky home, big block, fab location!

What a cool little place this one is! Super stylish, not too big and not too small. It's a perfect starter, investment or home to call home if you're at a stage of life where stopping and enjoy the simple things like watching the birds in the trees and listening to the sound of water navigating through its' creek bed sounds like a good idea.

Only minutes to access the freeway, Bridgewater or Mylor ovals, array of excellent schools and recreational grounds and venues, you can tick the 'location' box. 

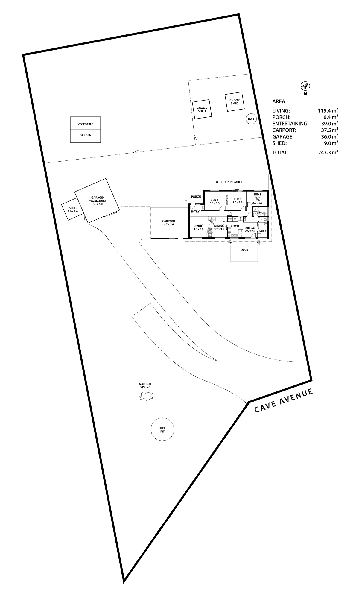
Sited over 2 titles, this is a commanding block, home to established trees of many varieties including birch, fig, cherry, native and deciduous. A creek meanders through the property and there's a permanent spring where the clearest, freshest water permeates through the ground in it's natural soak. What a wonderful opportunity to create your own spring fed swimming pond to enjoy in the heat of summer!

Right next to the spring the camp/fire pit ground is a favourite to be enjoyed socially or practically to reduce timber load - no council permits required to light a fire in this location too! 

Shedding is excellent, having a 6mx6m shed with concrete floor and power, a large wood shed and double carport.

A fully enclosed paddock, fenced by 6ft cyclone fencing is ideal for dogs, chooks or goats! Two wicking beds and two vegetable gardens are separately fenced, ready to be planted with home grown produce of your choice. Another independently fenced yard has chook sheds, ready for the 'girls' to call home.

Last but not least, this gorgeous home has heart; you'll feel it when you walk inside. First impression from the elevated landing, overlooking an open plan living / dining room is the warmth from the combustion heater and the captivating views through large windows that take in the tree tops like a moving 3D canvas.

A super funky timber kitchen with brekkie bar, enviable 6 burner free standing SMEG oven / cooktop and glorious views from the double sink make every day life and entertaining far from a chore. Enjoy your morning coffee at the study nook, or, outside on the deck with the local wildlife... maybe even introduce yourself to the very rare white currawong who calls these trees home (see photo!).

There's 3 well proportioned bedrooms, (master with build in robes), renovated bathroom / separate toilet, 3 ceiling fans and a split system in addition to the combustion heater to ensure all year round comfort. 

In addition to this already package packed property, it has 39sqms of undercover area lined with fernery and exposed rock earth wall for an attractive and practical place to BBQ and host. 

* Be quick, this is a short campaign with best offers by the 5th October (Unless Sold Prior) *

Be sure to view this Saturday 25th Sept @ 10.30am - 11.15am or Sunday 26th Sept @ 1.30pm- 2.15pm.

Phone Nina for more information if required, 0419 201 600.

(Floor plan to come)

3 1 4 3,196 m2

Details

Address 24 - 26 Cave Ave, Bridgewater
Price SOLD for $770,000
Property Type Residential
Property ID 11
Category House
Land Area 3,196 m2

Tools

Share This Property